General toilet detail. Download cad dwg file | CADBULL
Description
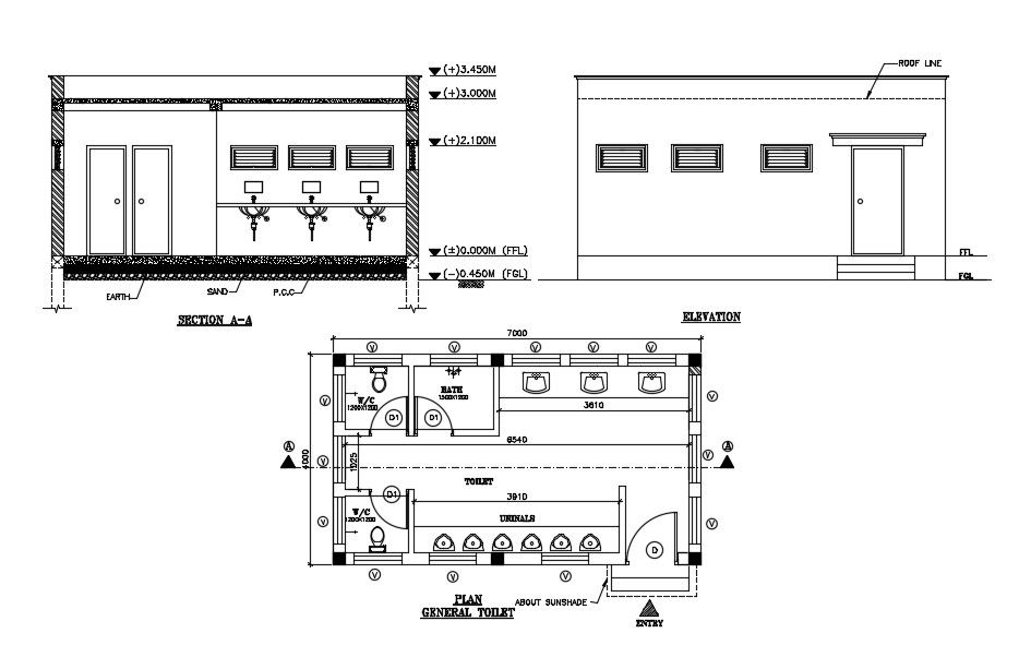
General toilet detail specified in this AutoCAD file. this file consists of toilet section detail and elevation detail with material specification and dimensions details in this AutoCAD drawing file. this can be used by architects and engineers. Download this 2d Autocad drawing file.
Uploaded by:
